中古戸建て

大分市横塚2丁目 中古住宅

大分市横塚2丁目 中古住宅

物件概要

所在地 大分市横塚2丁目153
物件名 横塚2丁目 中古住宅
価 格 2,390万円
敷地面積 208.00㎡ (62.92坪)
延床面積 93.56㎡ (28.30坪)
設 備 バス1坪以上、追焚機能、浴室乾燥機、温水洗浄便座、シャワー付洗面化粧台、全居室収納、クローゼット、照明器具、ダウンライト、省エネ給湯器、複層ガラス、クッションフロア、太陽光発電システム、モニタ付インターホン、庭、主要採光面、南向き、2面採光、全室2面採光、オール電化、24時間換気システム、外壁サイディング、全面棟無
駐車場 2台分
アクセス JR日豊本線 坂ノ市駅まで徒歩19分
学 区 大在東小学校・大在中学校
備 考 電気、上水道、下水道

物件詳細

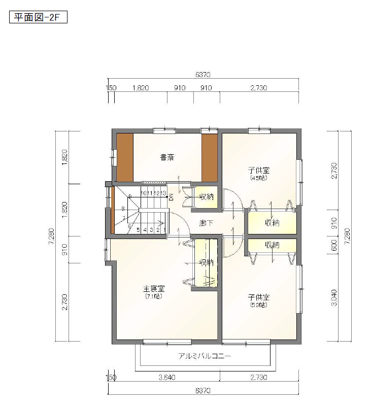
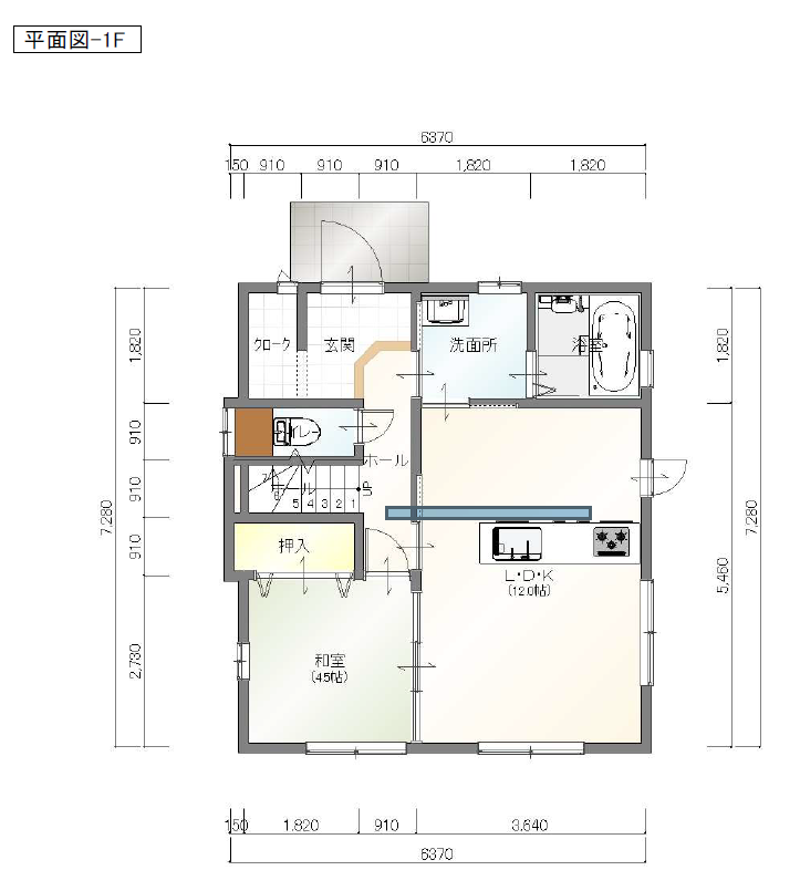
間取り 4SLDK
階 数 2階建
構 造 木造
築年月 2015年7月(築10年5ヶ月)
現 況 所有者居住中
土地権利 所有権
都市計画 市街化区域
用途地域 2種住居
建ぺい率 60%
容積率 200%
地 目 宅地
地 勢 平坦
接道状況
引渡し 相談
取引態様 専任媒介

ACCESS

お問い合わせ

ご登録いただく個人情報はプライバシーポリシーに記載の利用目的のうち、イベント予約への対応の範囲内にて利用いたします。
同意いただける場合は、「同意して確認画面へ」ボタンを押して、入力内容の確認画面へ進んでください。

【お電話でのお問い合わせはこちら】
tel. 0800-888-7746
(営業時間9:00~18:00/定休日:毎週水曜)

不動産名
大分市横塚2丁目 中古住宅
お名前
ふりがな
電話番号
メールアドレス
ご質問事項